Colaborativa · 2024
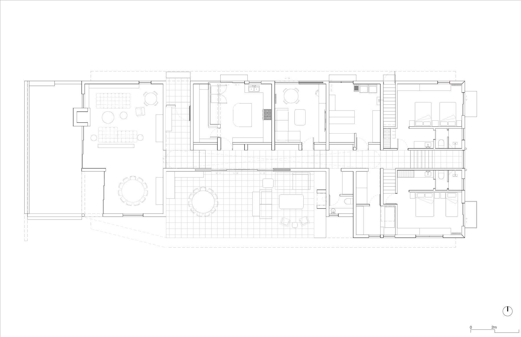
Casa Peñitas es proyecto ubicado dentro de una reserva ecológica, por lo cual era de suma importancia respetar el contexto y tener una conexión continua con el mismo. Situada en un terreno de casi 9,000m² el posicionamiento de la casa se decidió después de un estudio de vistas y orientaciones que favorecieran más a cada espacio.
Situada a lo largo del terreno, Oriente-Poniente en un solo nivel, la casa se organiza por una "columna vertebral" al centro que es un pasillo de casi doble altura que te va llevando a los distintos espacios. Este pasillo va bajando paulatinamente con el terreno al igual que cada espacio, dando diferentes alturas y vistas a cada uno. Para tener una comunicación continua con el entorno decidimos separar dos recámaras en un volumen exterior.
Materialmente quisimos acotar lo más posible la paleta de materiales, la casa cuenta con un basamento de concreto a lo largo y después…














Año
2024
Ubicación
Reserva Peñitas, Estado de México
Tipo
Vivienda unifamiliar
Estatus
En construcción
Colaboradores
José Cherem Serur
Despacho
Colaborativa